◇◆人気のエリアに広々90坪以上◆◇
主要道路へのアクセス良好◎
事業用地に最適です♪
売土地 売土地:葵区一番町、二番町
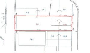
静岡市葵区一番町80番2、二番町74番3
【Map】
価格7,980万円
- 所在地
- 静岡市葵区一番町80番2、二番町74番3
- 価格
- 7,980万円
- 特徴
- 土地
-
面積:317.78㎡(96.12坪)
地目:宅地
権利:所有権
- 用途
-
都市計画:市街化区域
用途地域:近隣商業地域
建蔽率/容積率:80%/300%
法令:準防火地域
景観法
屋外広告物:第2種普通規制地域
駐車場附置義務適用区域
高度地区:最高限5種(31m)
- 建物
-
面積:
構造:
築年数:
種類:
間取り:
現況:
駐車場:
- 接道
- 南西側 公道 幅員約6.0m/接道約9.08m
北東側 公道 幅員約21.8m/接道約9.09m - 設備
- 中部電力/都市ガス/公営上水/公共下水
- 備考
- ◎現況:更地
◎引渡条件:現況有姿
◎引渡日:相談
◎隣地からの越境物あり ※覚書にて対処済み
◎学区:番町小学校・末広中学校


(9:00〜18:00 ※祝日を除く)